 |
|
|
 |
New Member
|
|
Jan 9, 2007, 06:31 PM
|
|
|
Furnace won't restart
Furnace will not restart, when temp. drops. When you turn the furnace switch off and then on the furnace will restart. This will happen several times a day, if nobody is home for a while it can get pretty cold.
|
|
|
 |
Junior Member
|
|
Jan 9, 2007, 08:31 PM
|
|
|
Please add more details: what kind of unit is it?. electric, gas, else?. is it only happening when temp drops, meaning that the unit ran for a long time or whatever it was needed to reach the set temperature?.
Some safety device seems to be preventing the unit to run properly... but it is hard to diagnostic w/o more details...
|
|
|
 |
New Member
|
|
Jan 10, 2007, 12:11 AM
|
|
|
Hi, I have the same problem as Senada, Simshak, and JS16. First my info I guess:
Lennox Whisper Heat G20
7yrs old
80% Efficiency
Forced Air furnace
NG
Digital Stat (Honeywell if it matters)
Seems like the furnace doesn't want to go through a full cycle. The stat requests heat, the furnace lights up, it works for a while, and then shuts down refusing to start until a manual off/on procedure is carried out. Sometimes it works till the desired heat is achieved, other times it just cuts out randomly as if it were bored or tired of doing its job. It dies with the damper open, and a led on the ignition control flashing rapidly.
A little history here is the furnace was doing the same thing last year so I called in a "professional" to see if he could fix it. After telling him what it was doing he put it through the paces. He removed the covers, and bypassed the safety controls then fired it up checking the pilot light, the burners, the stat etc. After an hour or more of this he finally declared " your problem is that the furnace shuts off and won't fire back up again and that little light on the board flashes off and on"... um thanks tips. After much head scratching and a few hmmsss and ahhhs he concluded that the only possible fix would be to replace the motherboard on the furnace. A few hours and $327.17 later and the furnace worked sort of. Now instead of shutting down early the little furnace was sure to reach the desired heat and then shut off, led flashing, refusing to reignite until the manual off/on cycle was repeated. My battle with him continues but that is another story.
Now we are in back in furnace season and it has decided to shutoff as it feels again. Sometimes reaching full heat, and sometimes shutting down early, but always refusing to reignite, with that damn led flashing. I haven't noticed a regular pattern in the temp it shuts down at, but I did notice that our friend the led has learned a new trick. Now instead of flashing rapidly as if trying to emulate a strobe light, sometimes it chooses to flash at a slower rate (perhaps its getting tired from flashing so much).
I located the flame sensor you mentioned, and managed to gain access to it (sort of) by removing a panel on the damper without damaging anything. It doesn't seem to be dirty, but before I go and do something stupid, perhaps you could tell me how to clean it ie: will household cleaners hurt it or make it dirtier?? soap and water?? no water as it could corrode wire? etc. Or is there possibly something else? Maybe we should change the motherboard again? If that is the case I think I'll buy a new furnace, I can handle spending the $20 bucks for a new filter each year, but shelling out over $300 every year on a new motherboard is a bit much. Hope you can help, and thanks in advance.
CiC
|
|
|
 |
Junior Member
|
|
Jan 10, 2007, 04:03 PM
|
|
|
Thanks for the information. As you explained the whole situation, first of all, I would NOT suggest to focus on the control board again since it has been already replaced (assuming it was the right part and all conexions were done properly). This is an intermittent failure that could be caused by different factors: faulty switch, faulty valve or faulty draft inducer (if applicable).
Perhaps, when you get it running stay there until stops and pay attention at which devices start creating the symptoms of the unit to stop, mainly just before the flame goes off, and post back your observations.
If you can post a picture of the unit of the gas valve section and if you have access to post the electric diagram it will be "easier" to pin-point which device could be causing this.
I hope this helps.
|
|
|
 |
New Member
|
|
Jan 15, 2007, 09:29 PM
|
|
|
Thanks for getting back to me Felrio. First I tried to follow a post similar to mine answered by Northern Heat and I removed and cleaned the flame sensor. It seemed to work for a while but now is back to its old games.
I did as you asked, and it seems that there is a click noise like a solenoid and the gas just simply shuts off and the flame goes out. I have timed how long the furnace runs for at a time and it is aprox 3 minutes. Then it sits for a couple of minutes and attempts to relight. There is a short clicking (the pilot light ignitor I can see the electrical flashes) followed with the same click (actually more of a clunk) noise and nothing. I know this isn't normal because when the furnace first starts up the pilot light ignitor clicks for a long time even continuing to click after the pilot is lit. It tries to do this for about 3-4 times (with the led lit steadily) until it simply switches to a flashing led and nothing until you manual reset. All the while the damper remains open. I have some canned air I'm going to try and clean the control board? Getting a little fustrated hope you can help. THanks in Advance
Cold... brrrr I really am now.
|
|
|
 |
Uber Member
|
|
Jan 16, 2007, 05:13 AM
|
|
|
In either fast or slow flashing mode, can you detect any pattern to the LED? Flash, pause, flash, flash, pause, is a 12. Somewhere there should be a list of the codes. That could direct you to a specific sensor. Since it can't seem to make up its mind how to fail, look at the plug where the sensor leads connect to the board. Clean up those contacts and reseat the plug firmly.
You can clean the flat ceramic thing with contacts with sandpaper.
And keep trying Northern Heats advice.
You can verify it isn't the thermostat by jumpering the R and W terminals at the furnace. If the furnace doesn't run as long as the jumper is in place, the problem is in the furnace.
|
|
|
 |
New Member
|
|
Jan 16, 2007, 09:46 PM
|
|
|
Thanks for the input labman, I am watching for a pattern as we speak. Funny thing is the furnace is cooperating a little more now that I'm getting some help such is life.
Now "flat ceramic thing" huh? The flame sensor was a piece of metal rod aprox the diameter of a coat hanger about 2" long coming from a ceramic base placed by the center burner and the pilot light. What is the " long coming from a ceramic base placed by the center burner and the pilot light. What is the " you speak of? I haven't tried cleaning this as I haven't seen it. There is a small round thing nearer to the damper door with two electrical contacts coming from it. It protrudes through the damper housing by a 1/4" or so (Not sure where you're from I can use metric if you want just tell me) and is aprox the diameter of say a tootise roll. Is this what you want me to clean?
Jumping the terminals, exactly how would I do that. I looked for R and W terminals are they on the control board or the ignition sensor? Sorry for such a noobish question.
Oh and I checked the led and it simply seems to be a steady flash say 2 per second, with no variation that I can detect. I have also searched for a list of codes but to no avail. I have searched lennox on line and downloaded all they offer for my particular furnace. The prior furnace owner was very diligent and kept every scrap of paper that came with the furnace I can't find anything there either. Perhaps someone out there in the ether can help with this one.
Thanks Again
Cold
PS Labs rule, at least the chocolate ones anyway!
|
|
|
 |
Junior Member
|
|
Jan 17, 2007, 09:20 PM
|
|
|
In case you are still trying to figure this one out... try this:
Make sure the unit is off and no call for heat.
With your hand spin the draft inducer. You MUST hear NOTHING. If you do, there is a possibility that the inducer motor it's bad. If you want to test this specifically, disconnect the inducer and connect it direct to a 120V (if that is the power needed.. you can check it on the inducer motor label). Make sure it is spinning in the proper rotation, if not, just switch the wires. If your inducer it is bad, it will stop by itself with the power connected.
If this test is passed, try the pressure valve and make sure that there are no particules blocking. If you can dismount it and clean it with the pressure air that you mentioned.
Both of these are pretty safe tests. Make sure on the inducer you take the proper safety while making the connections. Nothing difficult but be safe.
|
|
|
 |
Uber Member
|
|
Jan 17, 2007, 09:38 PM
|
|
|
You will have a circuit board with wires running both to the thermostat and into the furnace. Red is the hot wire, and when the furnace calls for heat, it switches it to the white. Jumpering them bypasses the thermostat and eliminates is a as possible problem.
Most of the furnaces have more than one sensor, usually the round one you describe, but also maybe the flat one. Clean all he ones you find.
|
|
|
 |
New Member
|
|
Jan 17, 2007, 10:20 PM
|
|
|
Thank you both for all your input.
Lab I found the R W and jumped as advised and the therm seems to be working just fine. I also changed the batteries to brand new in therm in case it was a working but weak signal from it. I am cleaning everything I can, I found what the sensor I was talking about it is a "roll-out switch". What is that? And what is the little round thing on top of it? My manual talks about resetting the roll out switch if there are problems. How do I reset this, I fiddled with but I can't see how you would reset it.
Felrio thanks for the suggestions but I think you're stepping a little out of my league for messing with this thing, perhaps not we'll see. I'm sorry but I don't know what a draft inducer is, could you please describe it to me. I have looked in my manual for anything of the such but couldn't find it. Is it sometimes called something else?
I have observed that the furnace sometimes works until it reaches heat, but most of the time works for exactly 3 minute intervals. I have read in other threads about pre-heat and hight-heat modes. Is this 3 minute interval the pre-heat? If so I guess then my furnace doesn't want to go into high heat. Also it seems like what fails is the delivery of the gas itself. Pilot seems to work great, so is there something specifically that controls the delivery of gas that is on the fritz?
Thanks again guys
Cold
|
|
|
 |
Uber Member
|
|
Jan 18, 2007, 05:31 AM
|
|
|
I have some, but not all your answers. I am not sure why they call it a flame roll out switch, but I think it is to catch a common malfunction. As for resetting it, if you don't see a little red button somewhere marked reset, try killing the power and turning it back on. Of course, you should do that every time you remove the cover. The exact 3 minute interval sound like the controls check something at that time and shut the gas off as it does when it finds any error.
I think if the inducer, or its pressure switch was the problem, the gas would never come on. The inducer is a small blower located between heat exchanger and the furnace vent. It pulls combustion air in and pushes the exhaust out the vent. It has a little pressure switch that closes when the blower pulls a vacuum in the combustion chamber. The inducer is the first thing that starts up in a heating cycle.
If the furnace runs 3 minutes in the low heat rate and then shifts to high, the inducer could be failing in the higher speed. Mine has a wheel on the outside you can see turning I think with the cover on. Watch yours and see if it slow down or stops before the gas goes out. You may need to paint lines on the wheel to see better. The pressure switch is a flat round thing with a hose going inside.
|
|
|
 |
Ultra Member
|
|
Jan 18, 2007, 04:08 PM
|
|
|
Poor airflow, or weak limit. Furnace is overheating, if the main limit opens 3 consecutive times the furnace locks out.
|
|
|
 |
Ultra Member
|
|
Jan 18, 2007, 07:18 PM
|
|
|
I agree with Northernheat. Sounds like a air flow problem. If you don't keep your filter clean or run your system with out a filter the chance of your evaporator coil(cooling coil) being dirty and restricting the air flow is good.
|
|
|
 |
New Member
|
|
Jan 18, 2007, 11:30 PM
|
|
|
Wow I've got everybodys attention now.
Ok so if it is airflow what can I do about it? And why is it happening now? And yes before you ask I changed the filter its brand new.
It has changed games now too (the furnace that is). For the first time it refuses to light at all. It lights the pilot then just as the flames ignite on the burner that same clunk noise and no gas no flame. I'm wondering if Labman wasn't on the right track.
For the record I've made an appoinment with a "professional", crappy thing is after contacting 4 different places the earliest appointment I can get is Tuesday. Turns out I'm not the only one with that needs your guys help.
Still if you guys can hold my hand until then, prehaps I can call it off.
Lab I'm sorry still having trouble locating inducer, is it called something else? I know what and where the heat exchanger is but the furnace vent, this is incoming air or out going? The only fan I can locate is the blower on the bottom and this doesn't start up until the flame is burning.
North, what's a weak limit and can I fix it?
T-Top this is furnace only is there still an evaporator coil in it or this only in combo heat/a/c unit? If there should be one how can I check it (or actually find it first I suppose)
Thanks guys
Cold
|
|
|
 |
New Member
|
|
Jan 18, 2007, 11:49 PM
|
|
|
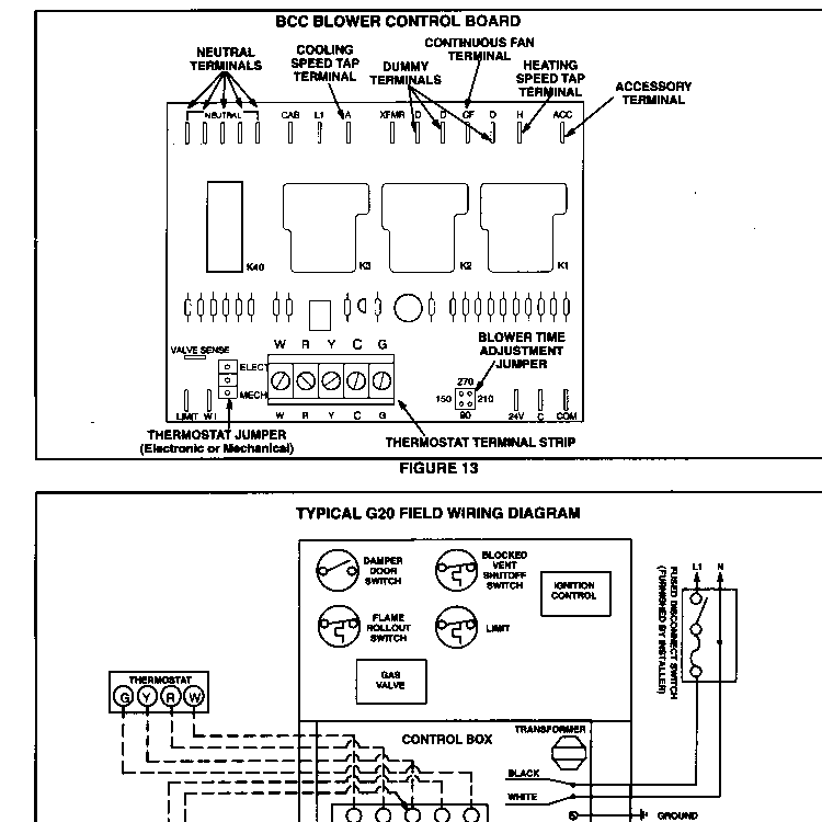
Oh Felrio had asked for wiring diagrams not sure if any of this will help but here goes:
|
|
|
 |
Ultra Member
|
|
Jan 19, 2007, 07:06 PM
|
|
|
I see on your wiring digram you sent you have to have an equipment ground on the gas valve if you do not have a good ground it will not work. The flame sensor can not sense the flame if the valve is not grounded.
|
|
|
 |
Ultra Member
|
|
Jan 19, 2007, 07:18 PM
|
|
|
After looking back you never said if you clean the flame sensor( the meatal rod in front of the burners). If you didn't this may be it. Don't use sandpaper this will only coat the sensor even more, turn the power off and scrape it with a knife.
|
|
|
 |
Uber Member
|
|
Jan 19, 2007, 07:30 PM
|
|
|
I think Northern and T-Top have some likely ideas.
I don't think it is the inducer, but if you want to find it, there is sort of a duct that leads from the combustion chamber to where the exhaust exits the furnace. Somewhere in it, there is a little blower that pulls air into the combustion chamber. You should be able to hear it when the furnace starts the ignition sequence. The inducer or forced draft is the first step. It has wires running to it from the control board.
|
|
|
 |
New Member
|
|
Jan 20, 2007, 05:06 PM
|
|
|
Doh! I did clean the flame sensor, and I did use sand paper (well emory cloth). Live and learn. Ok I'll try again to clean scraping it as you suggest. Will post results
Cold
|
|
|
 |
Junior Member
|
|
Jan 20, 2007, 06:05 PM
|
|
|
Here's a link of a Lennox unit. I hope it is close to what you have. The draft inducer it is called in your diagram as motor combustion blower.
In the picture of the link is on the top with a black back.
Electric motors do not always stop working immediately when they broke. They can start malfunctioning little by little until they just stop.
http://www.lennox.com/pdfs/brochures...%20Furnace.pdf
|
|
|
| Question Tools |
Search this Question |
|
|
|
Add your answer here.
Check out some similar questions!
MTD lawn machine will not restart
[ 5 Answers ]
I have a 10-year old MTD lawn machine. I can fully charge the battery, run the machine for 10-20 minutes, turn it off and it won't restart. The motor turns over a couple of times very slowly before the battery is totally drained. The volt meter reflects that the machine is charging. When it...
Computer restart automatcally
[ 1 Answers ]
Why computer restart automatically ? When I try shut down PC after select shutdown PC restart. Pl tel what to do?
Restart Message
[ 2 Answers ]
I loaded a program (a wireless mouse) and shut down the computer with out restarting. Now every time I start it up I get a message asking me if I want to restart to complete the update yes or no. If I restart I just get the same message no matter how many times I restart so I click "no" and the...
Cpu will not restart or start
[ 11 Answers ]
My problem happened awhile ago and now its getting worst it use to be I couldn't restart my PC without it freezing I'd have to unplug the power and let it sit for a while then come back to it but I wouldn't have a problem if I shut down until now. Now no matter how I shut down it will not start and...
Problems on restart
[ 1 Answers ]
Hi, newbi here, I just wanted to say hello and pose a question . I've learned a lot of useful information here in the past and I hope someone can help.
I'm running MS xp Home Edition, I recently discovered a problem where upon restart , my desktop appears but my mouse and keyboard are frozen....
View more questions
Search
|